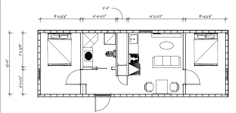
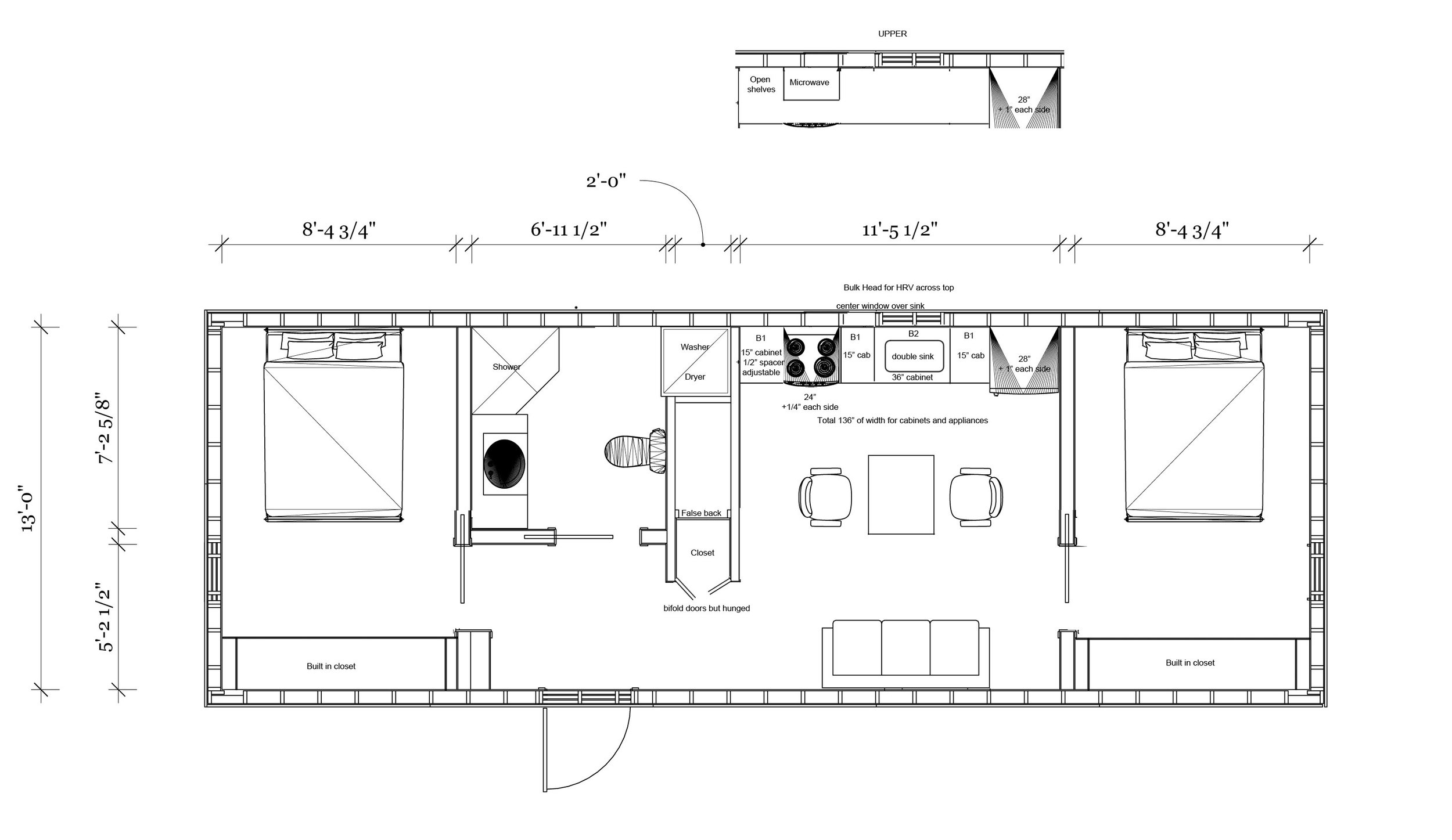
Model B

Two bedrooms, One bathroom and one kitchen/living area.

Everything you need in a small and affordable package.


The Equality

Focus on quality build for long term durability while keeping any luxuries to a minimum in order to maintain cost as low as possible.

Dimensions: 14’x40’

Includes:

  • Architect stamped structure built using dry kilned stamped lumber

  • Insulation up to building code of Nova Scotia

  • Standing seam metal roofing and siding

  • Plumbing and electrical

  • Appliances

  • All built in cabinets

  • Heat pump and HRV

  • Doors and windows

Does not include:

  • Delivery

  • Ground work or any site work

  • Furniture

  • Deck

Base price for a completed unit without any personal modifications is

119 999$ + HST

A 50% deposit is necessary at time of ordering

We often have stock of already finished units ready for delivery. Please ask for more details.

Note: A clear contract will be signed before any payment is made. Some layout options may be slightly different than shown here. Full plans and materials will be approved by you at time of purchase.

Learn more

Make it stand out

You may request modifications to one of our base models for an additional fee based on the difficulty and added costs of your modifications.

Want more windows or bigger windows?

Want a slightly different floor plan?

Want a shower instead of a tub/shower unit?

Want a different custom kitchen?

Note that we cannot increase the depth of the building or the height