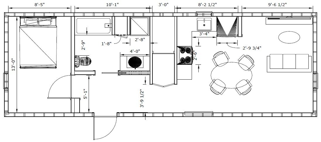
Model G

One bedroom, one bathroom and one kitchen/living area

Everything you need in a small and affordable package


The Living Large

Focus on quality build for long term durability while keeping any luxuries to a minimum in order to maintain cost as low as possible.

This unit includes a larger kitchen/living area.

Dimensions: 14’x42’, 588 sq ft

Includes:

  • Architect stamped structure built using dry kilned stamped lumber

  • Insulation above building code of Nova Scotia

  • Standing seam metal roofing and siding

  • Plumbing and electrical

  • Oven and fridge

  • All built in cabinets

  • Heat pump and HRV

  • Doors and windows

Does not include:

  • Delivery (available for a fee)

  • Ground work or any site work

  • Furniture

  • Deck

Base price for a completed unit without any personal modifications

131 249$ + HST

A 50% deposit is necessary at time of ordering

We often have stock of already finished units ready for delivery. Please ask for more details.

Note: A clear contract will be signed before any payment is made. Some layout options may be slightly different than shown here. Full plans and materials will be approved by you at time of purchase.

The Interior

Kitchen

Kitchen provides ample work surface and storage space

8' 2" x 13' 

Bedroom

Room comfortably accomodates a queen size bed

8' 5" x 13'
8' long

Bedroom closet

Closet with additional open storage for seasonal items

Make it stand out

You may request modifications to one of our base models for an additional fee based on the difficulty and added costs of your modifications.

Want more windows or bigger windows?

Want a slightly different floor plan?

Want a shower instead of a tub/shower unit?

Want a different custom kitchen?